FAS J-Track

helen contact background
/
/
/
FAS J-Track
MW FASJ Track logo

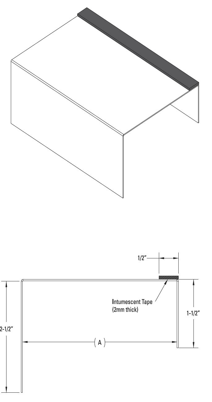
FAS J-Track has longer legs than standard J-Runner to provide greater deflection at the head-of-wall joint.

FAS J-Track provides 3/4” joint protection, providing the best possible L-Rating (smoke) for 1 hr and 2 hr fire ratings.

FAS J-Track also eliminates the installation of fire caulking of additional drywall rips. FAS J-Track is manufactured in 33mil thick G40 hot-dipped galvanized steel. G60 and G90 are available only upon special request and will require extended lead-times.

UL Logo
  • Meets UL 2079 5th edition
  • Tested for air leakage for compliance with the IBC
  • Sound tested to ASTM E90

Fire Rated J-Track for use in Joint System No.:

HW-D-0525, HW-D-0622, HW-D-0623, HW-D-0653, WW-S-0061, BW-S-0053.

  • MR Prerequisite: Construction and Demolition Waste Management Planning
  • MR: Credit: Construction and Demolition Waste Management
  • MR Credit: Building Product Disclosure and Optimization – Sourcing of Raw Materials, Option 2
  • MR Credit_ Building Product Disclosure and Optimization – Environmental Product Declarations, Options 1 & 2
  • MR Credit: Building Product Disclosure and Optimization – Material Ingredients, Option 1
  • MR Credit: Building Life-Cycle Impact Reduction, Option 4

SEE THE VALUE

PRODUCT DETAILS

FAS Track

FAS J-TRACK

FAS J-Track has longer legs than a standard J-Runner to provide greater deflection at the head-of -wall joint. FAS J-Track provides 3/4” overall unencumbered movement providing the best possible L-Rating (smoke) for 1 hr and 2 hr fire ratings. FAS J-Track also eliminates the installation of fire caulking of additional drywall rips. FAS J-Track is manufactured in 33mil thick G40 hotdipped galvanized steel. G60 and G90 are available only upon special request and will require extended lead-times.

FAS Track

FAS TRACK 1000 BOTTOM TRACK (BT)

FAS Track BT 1000 is a bottom track that offers fire and air (smoke) protection, eliminating the need for fire and sound sealant. The section is fabricated from hot-dipped galvanized steel complying with ASTM A653, and ASTM A1003 Grade 33 Type H for 33 ksi yield strength steel for 20 gauge (30 mils) with a minimum G40 coating complying with ASTM A924, and 18 gauge (43 mils) with a minimum G60 coating complying with ASTM A924; and Grade 50 Type H for 50 ksi yield strength steel for 54 mil (16 gauge) with a minimum G60 coating complying with ASTM A924.

FAS Track

FAS TRACK 1000 DEEP LEG (DL)

FAS Track 1000 DL is a deflection track with 1/2” intumescent Tape that offers fire and air (smoke) protection, eliminating the need for fire and sound sealant. The section is fabricated from hot-dipped galvanized steel complying with ASTM A653, and ASTM A1003 Grade 33 Type H for 33 ksi yield strength steel for 20 gauge (33 mils) with a minimum G40 coating complying with ASTM A924, and 18 gauge (43 mils) with a minimum G60 coating complying with ASTM A924; and Grade 50 Type H for 50 ksi yield strength steel for 16 gauge (54 mils) with a minimum G60 coating complying with ASTM A924. FAS Track 1000 DL has been tested with Underwritten Laboratories in accordance with UL 2079.

RELATED PRODUCTS

RESOURCES

Resources Thumb - Product Catalog
Product Catalog
Resources Thumb - UL Certifications
UL Certification
Resources Thumb - UL Certifications
UL Evaluation Report

GET PROJECT SUPPORT